VILLA SINGOLA ECOSOSTENIBILE CLASSE A4
- 580,000€
VILLA SINGOLA ECOSOSTENIBILE CLASSE A4
- 580,000€
Übersicht
- 3
- 2
- 100 Sq M
Beschreibung
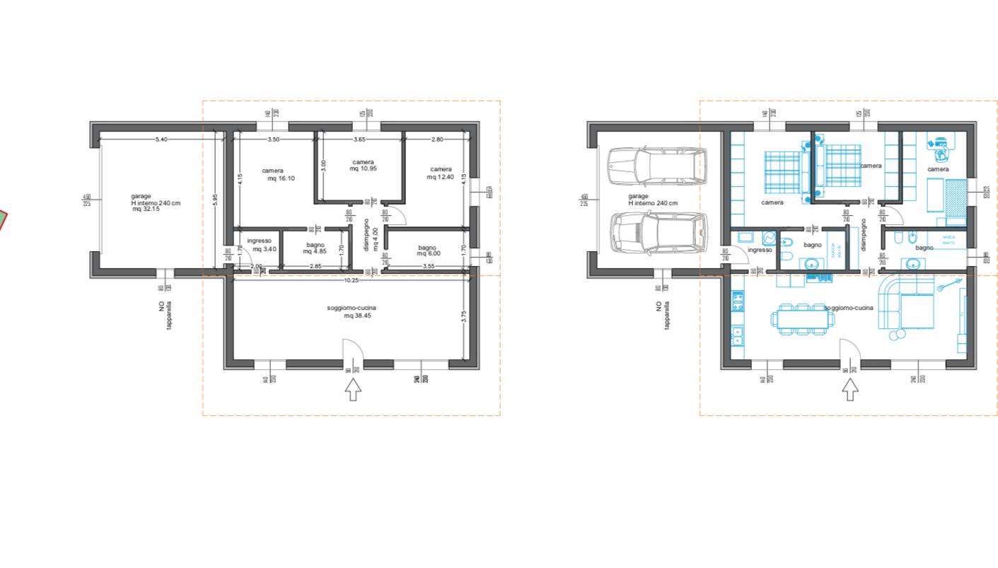
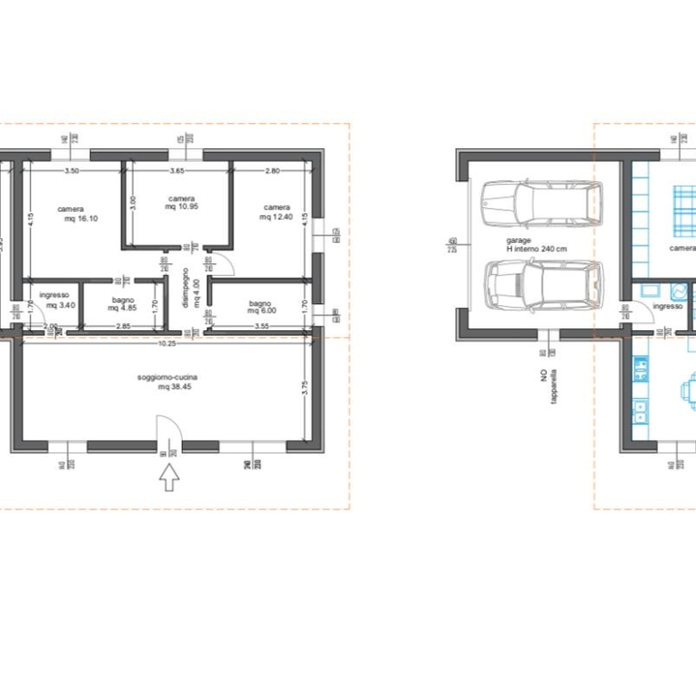
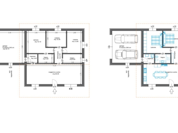
VILLA SINGOLA ECOSOSTENIBILE CLASSE A4 ,fortemente isolata , completamente elettrica, dotate di impianto fotovoltaico, 155mq netti utili villa 100 mq, garage 23 mq , portico 27 mq, con ampio giardino , fortemente isolata , nessuna spesa condominiale .
Tetto spiovente in legno lamellare a doppia falda.
Ville in costruzione non ancora edificate.
Details
Aktualisiert am Mai 18, 2026 beim 6:19 p.m.-
Immobilien-ID w-1805L
-
Preis 580,000€
-
Grundstücksgröße 100 Sq M
-
Bedrooms 3
-
Bathrooms 2
Finanzierungsrechner
Monatlich
-
Anzahlung
-
Kredithöhe
-
Monatliche Bezahlung
-
Grundsteuer
-
Versicherung
-
PMI
-
Nebenkosten












