Villa liberty da ristrutturare con progetto approvato
- 370,000€
- 370,000€
Übersicht
- 4
- 3
- 420 Sq M
Beschreibung
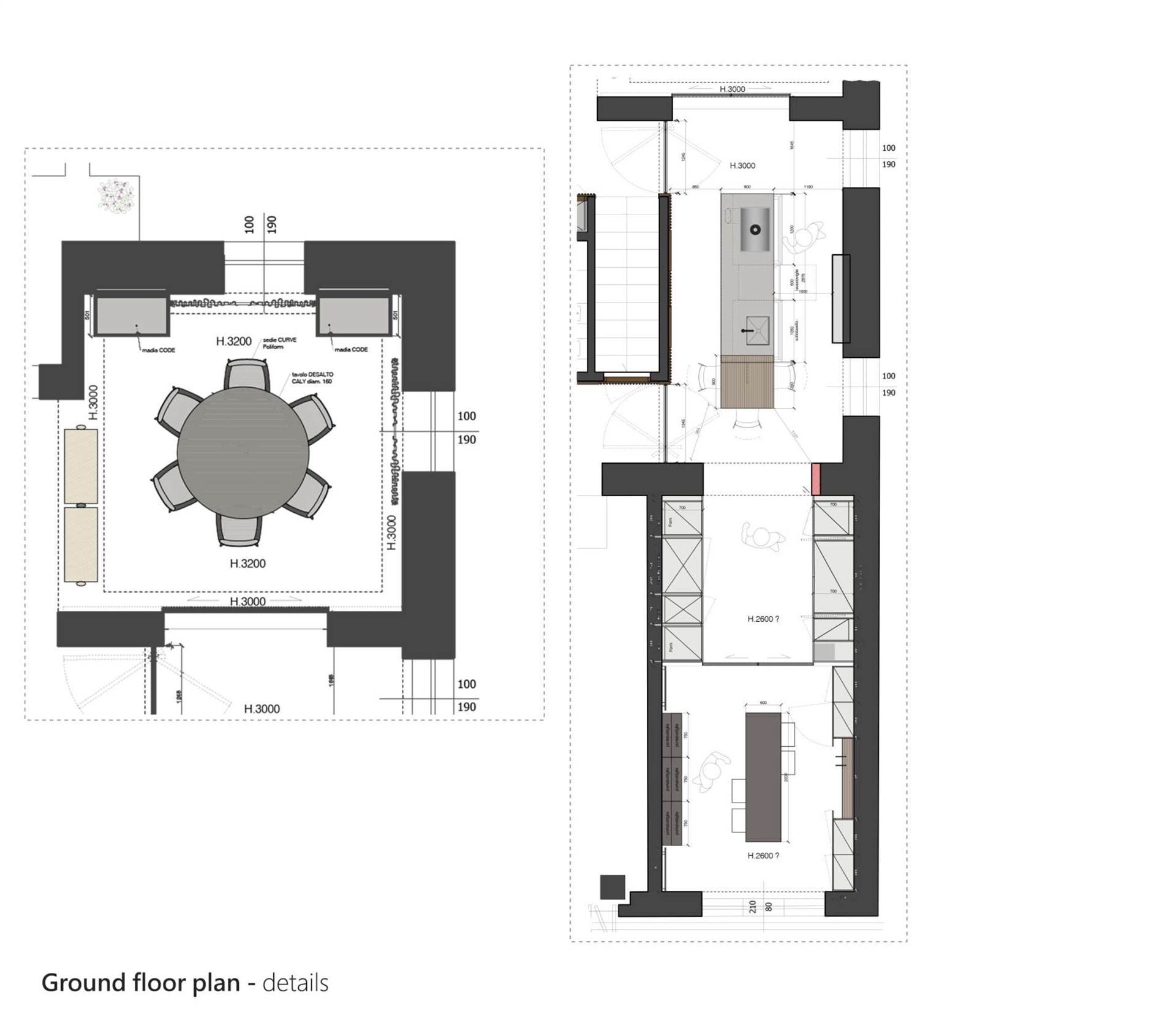
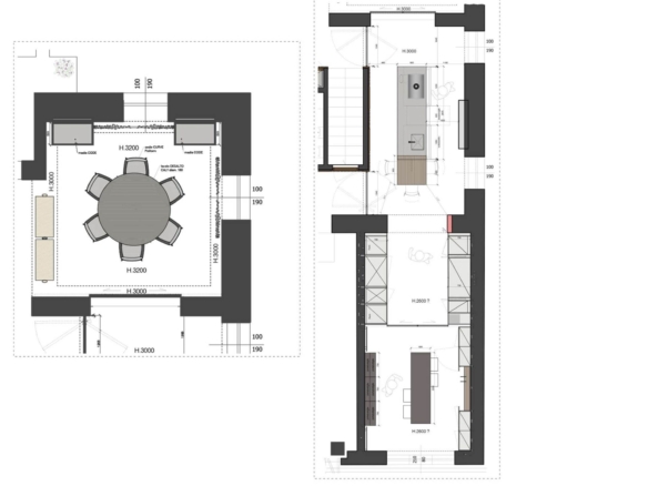
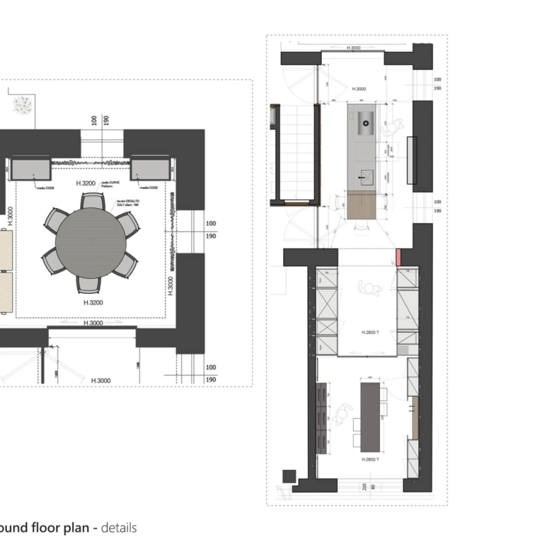
In vendita a Rezzato, in Via Gramsci 5, proponiamo una villa di ampia metratura, distribuita su tre livelli per un totale di 315 mq. Situata al piano rialzato, la villa offre 105 mq di spazio abitabile, con un ingresso indipendente che garantisce la massima privacy. L’immobile è composto da 10 vani, tra cui un soggiorno doppio luminoso e una cucina abitabile, perfetta per chi ama cucinare e intrattenere. La villa dispone di 4 camere da letto e 3 bagni, rendendola ideale per famiglie numerose.
Al primo piano troverete una mansarda di ulteriori 105 mq, ideale per creare uno spazio versatile, mentre al piano terra sono presenti un box/garage di 35 mq e un magazzino di 105 mq, offrendo ampie possibilità di stoccaggio e utilizzo. Completa la proprietà un terreno di 600 mq, perfetto per chi desidera avere un giardino privato o uno spazio esterno da personalizzare.
L’immobile, in classe energetica G, è da ristrutturare, offrendo l’opportunità di personalizzarlo secondo i propri gusti e necessità. Questa villa rappresenta un’ottima occasione per chi cerca una soluzione spaziosa e versatile in una zona tranquilla e ben servita. Non perdere l’opportunità di visitarla!
Details
Aktualisiert am Mai 18, 2026 beim 7:48 p.m.-
Immobilien-ID w-1416A
-
Preis 370,000€
-
Grundstücksgröße 420 Sq M
-
Bedrooms 4
-
Bathrooms 3
Finanzierungsrechner
-
Anzahlung
-
Kredithöhe
-
Monatliche Bezahlung
-
Grundsteuer
-
Versicherung
-
PMI
-
Nebenkosten



















