Diskretion, Kompetenz und Reichweite das ist Abeni Immobiliare

Porzione di VILLA BILFAMILIARE vista lago
  • 740,000€

Übersicht

  • 3
    Bedrooms
  • 3
    Bathrooms
  • 120 Sq M
    Flächengröße

Beschreibung

In zona tranquilla e residenziale, proponiamo villa bifamiliare di nuova costruzione.
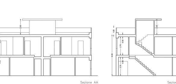
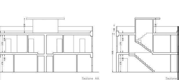
La villa si sviluppa sui due livelli fuori terra, gode di un ampio giardino esclusivo dove c’è la possibilità di realizzare una piscina privata vista Lago.
Al piano terra ampio soggiorno con cucina separata abitabile, bagno finestrato, portico vivibile. Al piano primo tre camere da letto e doppi servizi, terrazza coperta vista Lago. Al piano secondo ampio solarium di ca. 60 mq con totale vista Lago.
Completano la proprietà due posti auto coperti.
La proprietà verrà realizzata con un elevata qualità costruttiva, tecnologie all’avanguardia e finiture di pregio.
La villa bifamiliare sarà dotata di tutti i comfort di ultima generazione: riscaldamento a pavimento, ventilazione meccanica controllata, elevato isolamento termico, pannelli solari fotovoltaici.

  • Zip/Postal Code: 37019

Details

Aktualisiert am Mai 18, 2026 beim 7:49 p.m.
  • Immobilien-ID W-67E
  • Preis 740,000€
  • Grundstücksgröße 120 Sq M
  • Bedrooms 3
  • Bathrooms 3

Finanzierungsrechner

Ähnliche